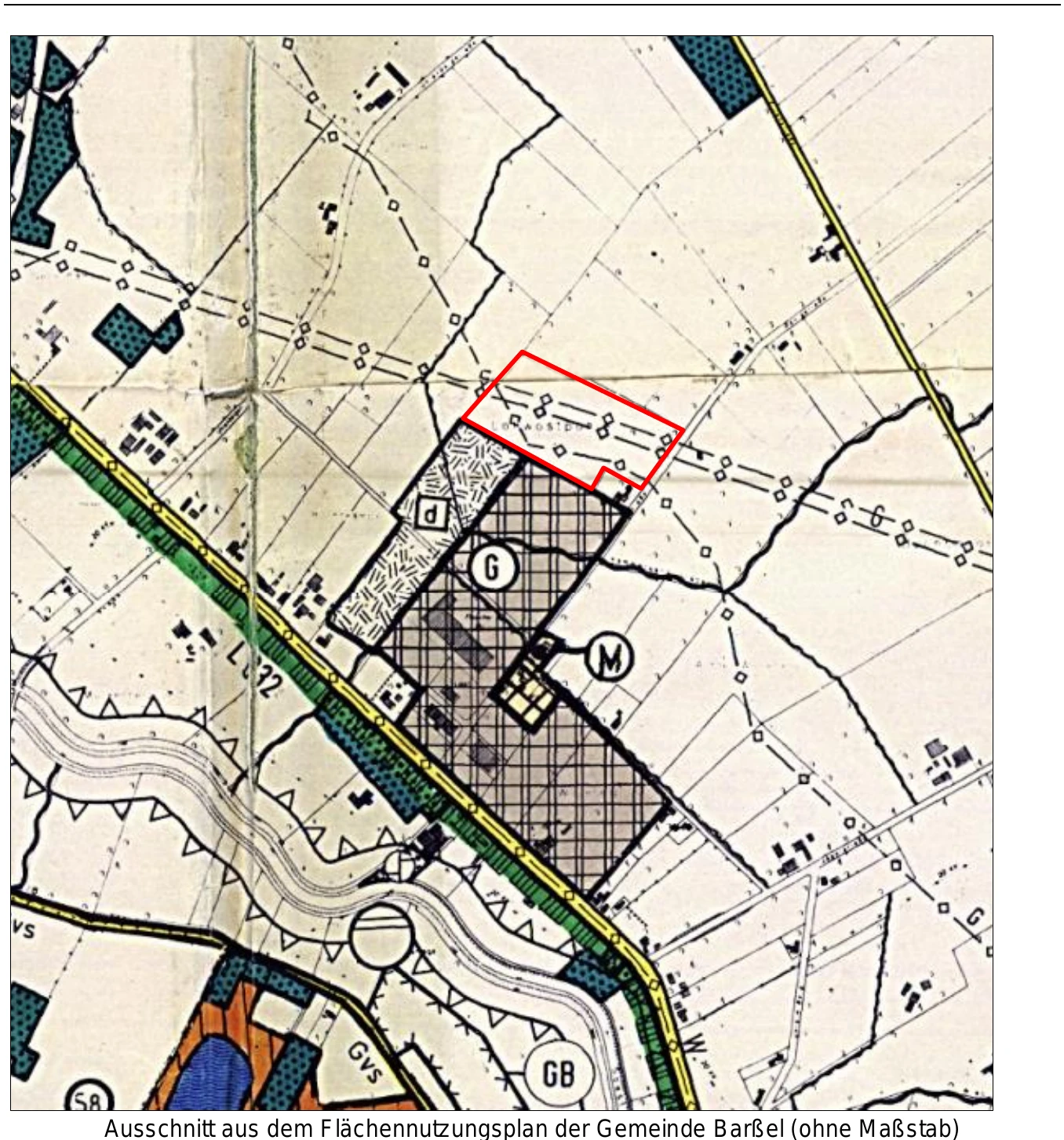
Lohwostpöhle, 26676 Barßel
Verkehrswert
315.000 €
Zwangsversteigerung: land- und forstwirtschaftlich genutztes Grundstück in Lohwostpöhle, 26676 Barßel mit einem Verkehrswert von 315.000 €. Versteigerungstermin am 18.06.2026 am Amtsgericht Amtsgericht Cloppenburg, 42.072 m² Grundstück. Inklusive KI-gestützter Gutachtenanalyse mit Investitions-Score und Mängelbewertung.
Bildquelle: Gutachten des Amtsgericht Cloppenburg
Fläche
—
Grundstück
42.072 m²
Baujahr
—
Termin
Donnerstag, 18. Juni 2026 um 09:00
315.000 €
18.06.2026 · AG Amtsgericht Cloppenburg
Automatisch aus dem Verkehrswertgutachten erstellt
Investitions-Score, Mängelbewertung, Bodenrichtwert und Renditerechner — kostenlos nach Registrierung.
Kostenlos · Keine Kreditkarte · Keine Werbung
Bauweise, Modernisierung, Objektdaten — kostenlos nach Registrierung.
Kostenlos registrierenMängel, Objektzustand, Finanzen, Belastungen und mehr — kostenlos nach Registrierung.
Kostenlos registrierenUnsere Experten-KI empfiehlt Ihnen die Auktion genauer zu prüfen und die relevanten Gutachten herunterzuladen.
Termin vormerkenDonnerstag, 18. Juni 2026 um 09:00
Amtsgericht Cloppenburg, Burgstr. 9, 49661 Cloppenburg, Raum: 6
Laden Sie die Verfahrensdokumente herunter und prüfen Sie den baulichen Zustand.
Vereinbaren Sie eine Besichtigung, idealerweise mit einem Gutachter vor Ort.
Kontaktieren Sie eine Rechtsberatung für die Teilnahmevorbereitung.
Im ersten Termin muss das Gebot mindestens 50% des Verkehrswerts betragen.
Geschätzt auf Basis Verkehrswert, Niedersachsen
Exakte Berechnung im Nebenkostenrechner
Registrieren Sie sich kostenlos und erhalten Sie Zugang zu Investitions-Score, Mängelbewertung, Bodenrichtwert und Renditerechner.
Kostenlos. Keine Kreditkarte. Keine Werbung.
Daten von Justizportal Zvg-Portal.de
Originalanzeige im JustizportalAlle Angaben ohne Gewähr. Wir übernehmen keine Haftung für die Richtigkeit und Vollständigkeit. Bitte prüfen Sie alle Angaben beim zuständigen Amtsgericht.
Es ist zweckmäßig, schon zwei Wochen vor dem Termin eine genaue Berechnung des Anspruchs einzureichen. Die Anmeldung ist vor dem Verteilungstermin auch beim Vollstreckungsgericht möglich.