Buerer Straße 85, 45899 Gelsenkirchen
Verkehrswert
1 €
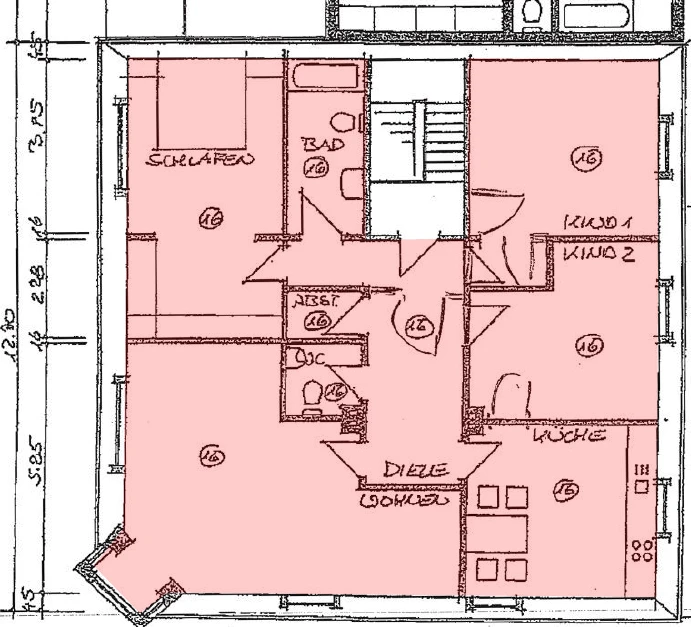
Zwangsversteigerung: Eigentumswohnung in Buerer Straße 85, 45899 Gelsenkirchen mit einem Verkehrswert von 1 €. Versteigerungstermin am 21.04.2026 am Amtsgericht Amtsgericht Gelsenkirchen, 129 m² Wohnfläche, 1.480 m² Grundstück. Inklusive KI-gestützter Gutachtenanalyse mit Investitions-Score und Mängelbewertung.
Bildquelle: Gutachten des Amtsgericht Gelsenkirchen
Fläche
129 m²
Grundstück
1.480 m²
Baujahr
1893
Termin
Dienstag, 21. April 2026 um 07:30
1 €
21.04.2026 · AG Amtsgericht Gelsenkirchen
Automatisch aus dem Verkehrswertgutachten erstellt
Investitions-Score, Mängelbewertung, Bodenrichtwert und Renditerechner — kostenlos nach Registrierung.
Kostenlos · Keine Kreditkarte · Keine Werbung
Bauweise, Modernisierung, Objektdaten — kostenlos nach Registrierung.
Kostenlos registrierenMängel, Objektzustand, Finanzen, Belastungen und mehr — kostenlos nach Registrierung.
Kostenlos registrierenKartenanzeige erfordert Google Maps
Unsere Experten-KI empfiehlt Ihnen die Auktion genauer zu prüfen und die relevanten Gutachten herunterzuladen.
Termin vormerkenDienstag, 21. April 2026 um 07:30
Amtsgericht Gelsenkirchen, Hauptgebäude, Bochumer Straße 79, 45886 Gelsenkirchen, Etage 2, Sitzungssaal 202
Laden Sie die Verfahrensdokumente herunter und prüfen Sie den baulichen Zustand.
Vereinbaren Sie eine Besichtigung, idealerweise mit einem Gutachter vor Ort.
Kontaktieren Sie eine Rechtsberatung für die Teilnahmevorbereitung.
Im ersten Termin muss das Gebot mindestens 50% des Verkehrswerts betragen.
Geschätzt auf Basis Verkehrswert, Nordrhein-Westfalen
Exakte Berechnung im Nebenkostenrechner
Registrieren Sie sich kostenlos und erhalten Sie Zugang zu Investitions-Score, Mängelbewertung, Bodenrichtwert und Renditerechner.
Kostenlos. Keine Kreditkarte. Keine Werbung.
Daten von Justizportal Zvg-Portal.de
Originalanzeige im JustizportalAlle Angaben ohne Gewähr. Wir übernehmen keine Haftung für die Richtigkeit und Vollständigkeit. Bitte prüfen Sie alle Angaben beim zuständigen Amtsgericht.
Es ist zweckmäßig, schon zwei Wochen vor dem Termin eine genaue Berechnung des Anspruchs einzureichen. Die Anmeldung ist vor dem Verteilungstermin auch beim Vollstreckungsgericht möglich.